2519 W HIGHWAY 44INVERNESS, FL 34453




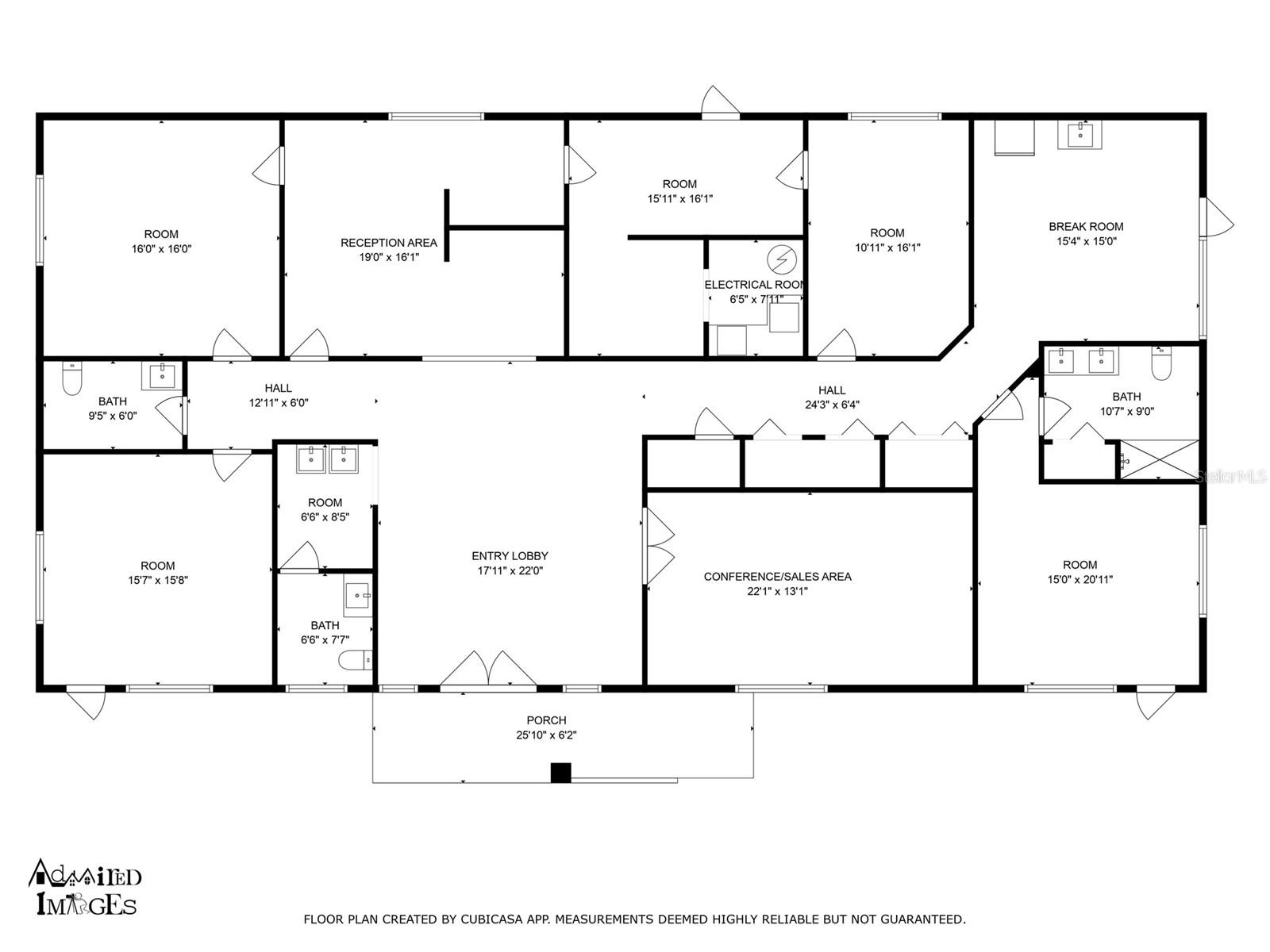
Located in the heart of Citrus County, just 55 minutes from Tampa International Airport, this fully renovated 3,200 SF executive office building offers a prime investment opportunity. Situated directly on State Road 44 (29,500 AADT) on 0.71 acres of General Commercial-zoned land, the property features four private offices, a large conference room, reception, mail/copy room, oversized lobby, breakroom, and three ADA-compliant restrooms. With 37 parking spaces, full city utilities, and high-end finishes throughout, the space is ideal for professional or medical use. The property is leased to a national newspaper conglomerate under a corporate-guaranteed NNN lease with 2.5% annual rent increases and two 3-year renewal options, offering strong passive income. Citrus County’s office sector remains one of the strongest performers in Central Florida, with average cap rates near 6%. Positioned just 2.2 miles from Historic Downtown Inverness and near key civic and healthcare centers, the site enjoys regional access to major communities like Lecanto, Crystal River, and Homosassa. Citrus County is one of Florida’s fastest-growing areas, with projections exceeding 350,000 residents by 2030 and inclusion in the Tampa–St. Petersburg–Clearwater MSA, the 18th largest in the U.S. This property offers rare value in a growing market—ideal for investors seeking stable returns or end-users looking to secure a premium, high-visibility location. Disclaimer: All information provided herein is for marketing purposes only and is not guaranteed for accuracy. Prospective buyers or tenants are encouraged to conduct their own independent due diligence. The seller, broker, and associated parties make no representations or warranties, expressed or implied, as to the accuracy or completeness of this information. All dimensions, zoning details, financial data, and other property-related facts should be independently verified. Please consult with appropriate licensed professionals before making any investment or purchasing decisions.
| 4 weeks ago | Listing updated with changes from the MLS® | |
| 3 months ago | Price changed to $675,000 | |
| 10 months ago | Status changed to Active | |
| 2 years ago | Listing first seen on site |
Listing information is provided by Participants of the Stellar MLS. IDX information is provided exclusively for personal, non-commercial use, and may not be used for any purpose other than to identify prospective properties consumers may be interested in purchasing. Information is deemed reliable but not guaranteed. Properties displayed may be listed or sold by various participants in the MLS Copyright 2026, Stellar MLS.
Last checked: 2026-02-01 09:55 AM EST


Did you know? You can invite friends and family to your search. They can join your search, rate and discuss listings with you.