639 NE 1st StreetCrystal River, FL 34429




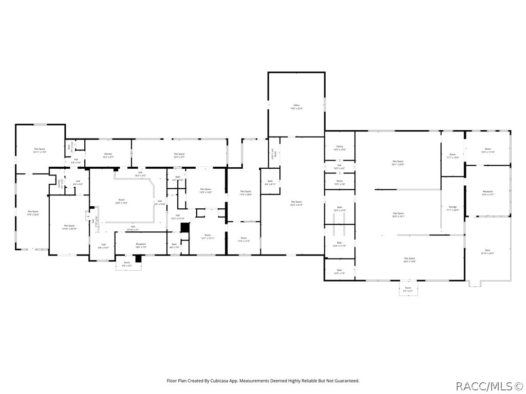
This offering presents a unique opportunity to acquire a 7,804 square foot commercial building situated on 0.47 acres within the City Limits of Crystal River, Florida, strategically located just off the primary commercial corridor of US Highway 19/98, which experiences approximately 27,500 vehicles per day. Positioned in the heart of one of the area’s most active retail and service districts, the property benefits from strong surrounding commercial activity including national grocers, retailers, quick-service and sit-down restaurants, bars, and local businesses, with Burger King located directly along the western boundary line of the property. The building, originally constructed and operated as a daycare facility, features a large and flexible interior layout capable of supporting a wide variety of commercial uses. The structure includes expansive open flex areas, multiple private offices or possible exam rooms, seven roughed-in bathrooms, a laundry facility, and a kitchen/break area. This existing configuration provides an efficient foundation for numerous potential uses with minimal reconfiguration required. The property has never experienced flooding, an important distinction for investors and owner-users seeking operational reliability and long-term stability in coastal Florida markets. The site is located just a few blocks from Downtown Crystal River Square and is zoned CH (Commercial High Intensity) under the City of Crystal River Land Development Code. This zoning designation allows for a wide range of commercial and institutional uses, creating significant flexibility for future ownership. Permitted or potential uses may include medical and professional office space, assisted living or skilled nursing facilities, rehabilitation or treatment centers, group homes, veterinary clinics, restaurants, bars, and various service-oriented businesses, subject to municipal approvals where applicable. Citrus County is also included within the Tampa–St. Petersburg–Clearwater Metropolitan Statistical Area, which ranks as the 18th largest MSA in the United States. This regional connectivity provides access to the broader Tampa Bay economic ecosystem while maintaining the advantages of a growing secondary market with lower entry costs and expanding demand for services.
| 5 days ago | Price changed to $589,900 | |
| 5 days ago | Listing updated with changes from the MLS® | |
| 2 months ago | Listing first seen on site |
Listing information is provided by Participants of the REALTORS Association of Citrus County MLS. IDX information is provided exclusively for personal, non-commercial use, and may not be used for any purpose other than to identify prospective properties consumers may be interested in purchasing. Information is deemed reliable but not guaranteed. Copyright 2026, REALTORS Association of Citrus County MLS.
Last checked: 2026-05-27 07:03 PM UTC

