5198 N Sierra Vista DriveCrystal River, FL 34428




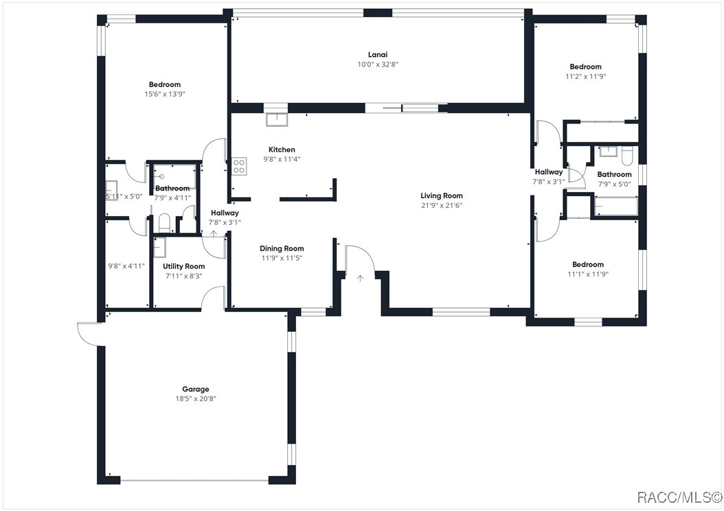
Country Living at Its Best — Beautiful 5-Acre Property with Custom Home and Large 30x40 Workshop in Crystal River! Escape to peaceful country living in this well-built custom home situated on 5 gorgeous shaded acres in a desirable Crystal River neighborhood—just minutes from town and the stunning Nature Coast. This spacious home offers over 1,700 sq. ft. of living area with 3 bedrooms, 2 bathrooms, a large great room, dining room, split-bedroom floor plan, indoor laundry, and a screened porch perfect for relaxing or entertaining. The impressive 30x40 (1,200 sq. ft.) detached workshop/garage features power, concrete floors, and two large roll-up doors, providing an ideal space for vehicles, boats, hobbies, or extra storage. Set on a nicely elevated homesite, the property has plenty of room for a pool, garden, RV parking, or even the mini-farm you’ve always wanted—horses, cows, and chickens are welcome! Enjoy the quiet, private setting while staying close to shopping, dining, and outdoor recreation. Explore nearby horse trails, state parks, and the scenic Rails-to-Trails biking and hiking paths. You’ll also love the easy access to Crystal River boat ramps and popular spots like Target, Walmart, Starbucks, and Texas Roadhouse. With the Suncoast Parkway just a short drive away, travel to Tampa and beyond is simple and stress-free. If you’re ready to leave city congestion behind and embrace a lifestyle of peace, space, and nature, this property is the perfect opportunity. Come see it today—you’ll fall in love with everything it has to offer!
| 3 weeks ago | Status changed to Pending | |
| 3 weeks ago | Listing updated with changes from the MLS® | |
| 4 months ago | Price changed to $399,900 | |
| 4 months ago | Listing first seen on site |
Listing information is provided by Participants of the REALTORS Association of Citrus County MLS. IDX information is provided exclusively for personal, non-commercial use, and may not be used for any purpose other than to identify prospective properties consumers may be interested in purchasing. Information is deemed reliable but not guaranteed. Copyright 2026, REALTORS Association of Citrus County MLS.
Last checked: 2026-03-03 12:38 AM UTC


Did you know? You can invite friends and family to your search. They can join your search, rate and discuss listings with you.