669 NE Us Highway 19Crystal River, FL 34429




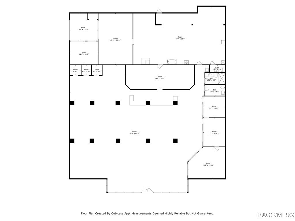
Located in the heart of the walkable Historical Downtown Crystal River, this ±7,090 SF free-standing concrete block building offers a rare opportunity at one of the city’s most visible intersections. Positioned at the signalized corner of US-19/Suncoast Boulevard (±23,000 AADT) and NE 3rd Avenue (±3,400 AADT), the property sits on ±0.36 acres with 86 feet of frontage along US-19 and 183 feet on NE 3rd Avenue. The building features approximately 5,000 SF of open retail/showroom space and 2,122 SF of functional shop space with a grade-level roll-up door, providing excellent flexibility for retail, showroom, or service-oriented uses. Originally constructed in 1963 and remodeled in subsequent years, the property has long served as a recognizable landmark in Crystal River. While impacted by Hurricane Helene and requiring remediation, the structure remains solid, offering a true value-add opportunity to reposition a prime downtown asset. The location is highly walkable, with direct access to Crystal River Town Square, the Riverwalk, City Cross Town Trail, boutique restaurants, and shops that attract both locals and tourists. Just minutes away are popular attractions including Three Sisters Springs, Hunter Springs Park, Kings Bay, and multiple public boat ramps, ensuring consistent tourism-driven traffic in addition to local demand. Regional access is exceptional: the Crystal River Mall and Hospital are located just north of the property, while the six-lane expansion of US-19 and the Suncoast Parkway to the south provide direct connectivity to Tampa International Airport in just over an hour. Neighboring national brands such as Walgreens, CVS, McDonald’s, Taco Bell, Dunkin’, Wawa, and Winn-Dixie reinforce the area’s commercial strength and visibility. With its prime downtown location, strong traffic counts, flexible layout, and proximity to both tourism and essential services, this property represents an exceptional opportunity for investors or end-users to restore and reposition a cornerstone of Crystal River’s commercial corridor. As part of the Tampa–St. Petersburg–Clearwater Metropolitan Statistical Area (MSA), the 18th largest metro area in the United States, Citrus County is experiencing rapid population growth, with projections estimating an increase from 153,600 to 350,000 residents by 2030. This growth is driving an expanding demand for residential and commercial infrastructure, reinforcing the need for well-positioned development sites. The recent $135 million expansion of the Suncoast Parkway has further enhanced accessibility, positioning Citrus County as a key gateway to the Tampa Bay region and strengthening its attractiveness for investment. With its prime downtown location, strong traffic counts, flexible layout, and tourism-driven demand, this property offers an exceptional opportunity for investors or end-users to restore and reposition a cornerstone of Crystal River’s commercial corridor.
| 3 months ago | Price changed to $747,000 | |
| 3 months ago | Listing updated with changes from the MLS® | |
| 6 months ago | Listing first seen on site |
Listing information is provided by Participants of the REALTORS Association of Citrus County MLS. IDX information is provided exclusively for personal, non-commercial use, and may not be used for any purpose other than to identify prospective properties consumers may be interested in purchasing. Information is deemed reliable but not guaranteed. Copyright 2026, REALTORS Association of Citrus County MLS.
Last checked: 2026-02-23 05:21 AM UTC


Did you know? You can invite friends and family to your search. They can join your search, rate and discuss listings with you.