8381 N Wayside AvenueDunnellon, FL 34433




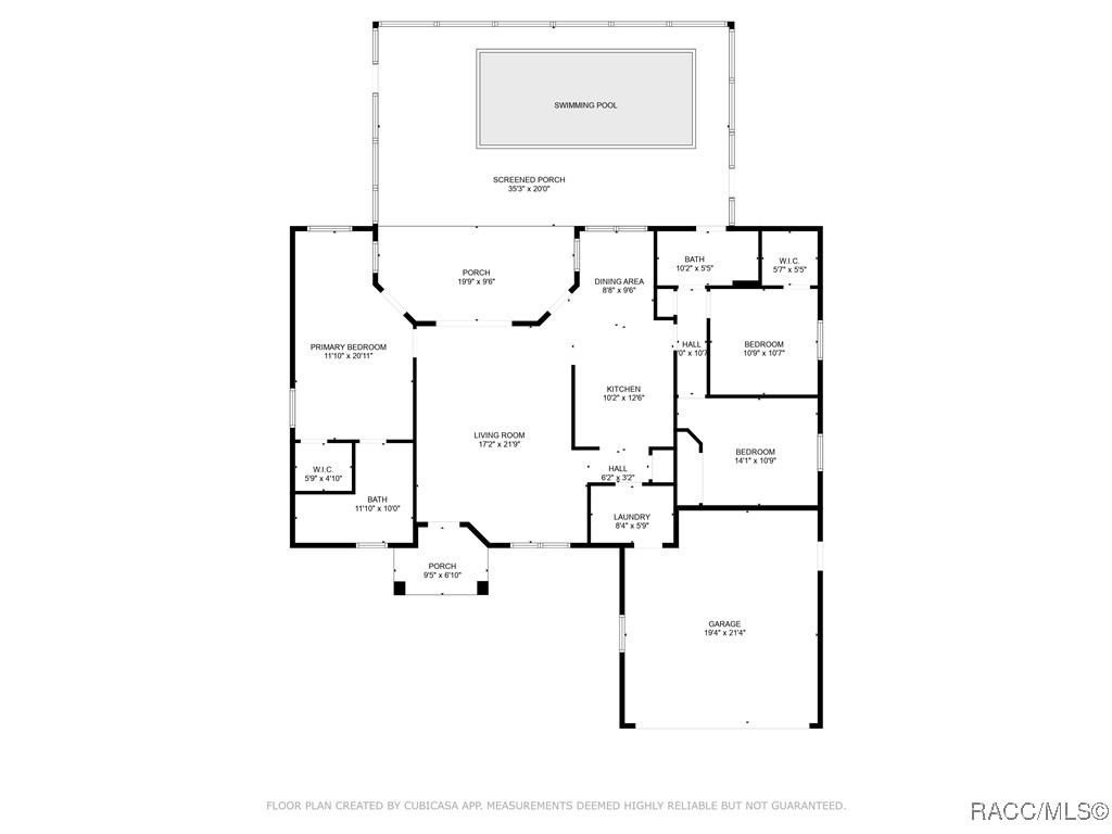
Built in 2024, this 3-bedroom, 2-bathroom pool home on a half-acre lot offers modern living with no HOA. The interior features luxury vinyl plank flooring throughout and granite countertops in both the kitchen and bathrooms. The open floor plan flows seamlessly into a screened-in pool area—perfect for year-round enjoyment. Located just 10 minutes from Dunnellon and 15 minutes from Crystal River, you’re close to some of Florida’s best outdoor activities. Spend weekends kayaking the clear waters of the Rainbow River, swimming with manatees in Crystal River, or scalloping in the Gulf. This home puts you near it all—without giving up space or privacy.
| 3 months ago | Price changed to $389,000 | |
| 3 months ago | Listing updated with changes from the MLS® | |
| 5 months ago | Listing first seen on site |
Listing information is provided by Participants of the REALTORS Association of Citrus County MLS. IDX information is provided exclusively for personal, non-commercial use, and may not be used for any purpose other than to identify prospective properties consumers may be interested in purchasing. Information is deemed reliable but not guaranteed. Copyright 2026, REALTORS Association of Citrus County MLS.
Last checked: 2026-01-03 09:32 AM UTC


Did you know? You can invite friends and family to your search. They can join your search, rate and discuss listings with you.